3 pokojowe w lokalu Lublin Bronowice/Felin

Mieszkanie na sprzedaż
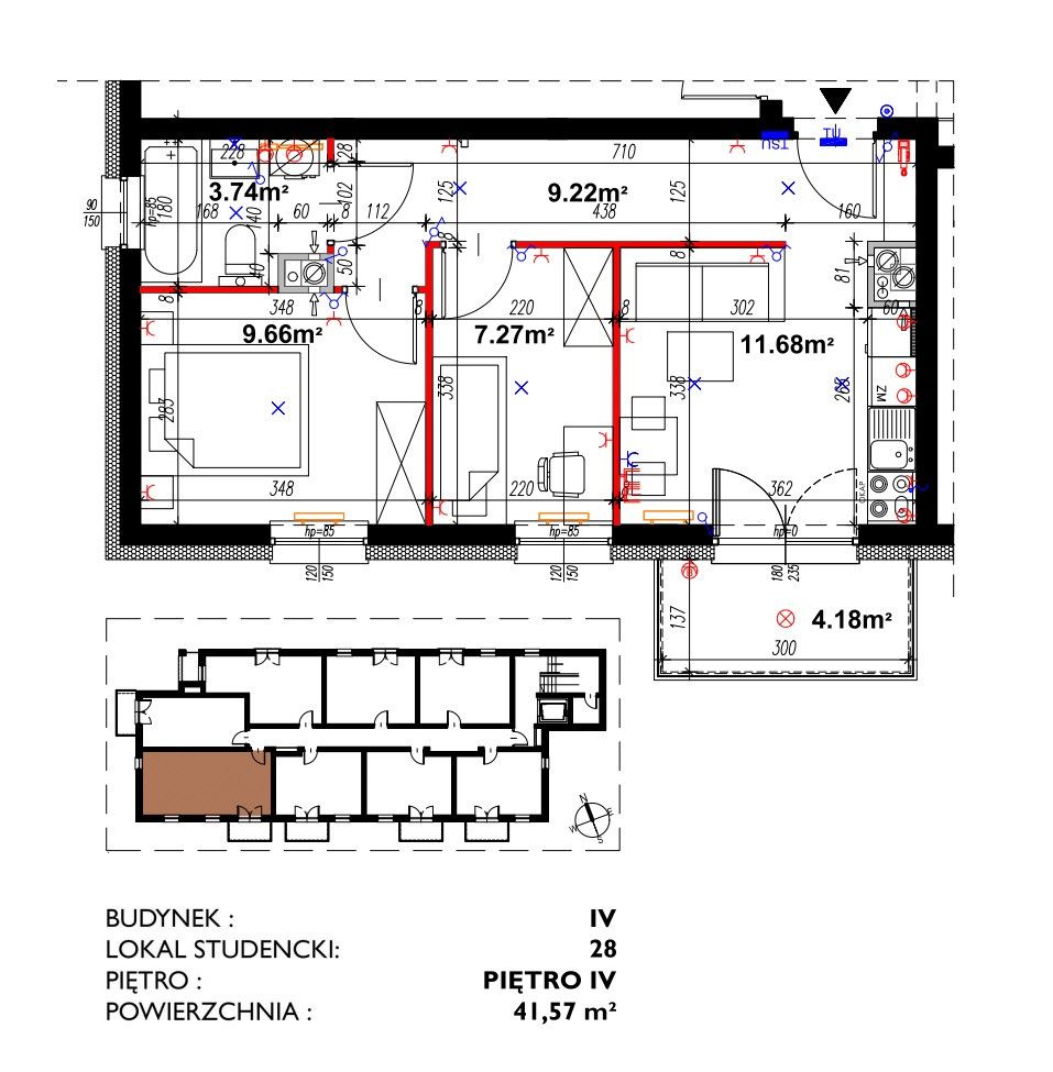
416 100,00 PLN , Pow. 41,61 m2
Drukuj ofertę
Drukuj ofertę
Typ nieruchomości:
Mieszkanie
Powierzchnia:
41,61 m2
Typ transakcji:
sprzedaż
Liczba pokoi:
3
Lokalizacja:
Lublin Felin
Rok budowy:
2025
Piętro:
4 na 5
Numer oferty:
761978
Cena za m2:
10 000,00 PLN
Lokal inwestycyjny o pow. 41,61 m2 na 4 p. / 5 p. okolice ul. Droga Męczenników Majdanka. 

Zestawienie powierzchni:

Pomieszczenie dziennego pobytu z aneksem kuchennym o pow. 11,68 m2 z wyjsciem na balkon o pow. 4,18 m2
Pokój o pow. 7,27 m2,
Pokój o pow. 9,66 m2,
Komunikacja o pow. 9,22 m2,
Łazienka o pow. 3,74 m2,

Dodatkowe informacje:
Miejsce postojowe na parkingu naziemnym w cenie 25.000 zł.
Możliwość zakupu komórki lokatorskiej na pół piętrze - 3500 zł/m2

MEDIA:
ogrzewanie z sieci miejskiej, woda, prąd, brak gazu w budynku

Atuty inwestycji:
- lokata kapitału, możliwość odliczenia 23 %
- światłowód
- doskonała lokata kapitału
- wysoki standard wykończenia,
- nowoczesna forma architektoniczna
- cichobieżne windy
- dostosowane do potrzeb osób niepełnosprawnych
- dobry dojazd do centrum, galerii handlowych, szkoły, przedszkoli, szpitali.

Termin realizacji: III kwartał 2025
Płatność w transzach, podana cena w ogłoszeniu netto. Vat 23 %.

*jeśli potrzebujesz pomocy eksperta w dobraniu finansowania zakupu nieruchomości, skontaktuj się z opiekunem oferty.

Ofertę przygotowała i prezentuje:
Patrycja Czarnik 791689906
Licencjonowany Pośrednik Nieruchomości
Franczewska Nieruchomości

Zapraszam do kontaktu oraz na prezentację nieruchomości!

Treść niniejszego ogłoszenia nie stanowi oferty handlowej w rozumieniu Kodeksu Cywilnego, ale jest zaproszeniem do współpracy. Dokładamy wszelkich starań, aby każda z ofert była rzetelnie sprawdzona oraz aktualna. Więcej unikalnych ofert w podobnych kryteriach znajdą Państwo na naszej stronie.
Nieprawidłowy adres E-mail